仁和规划 · 2023年6月28日 0

永泰村这里拟建村级文化礼堂

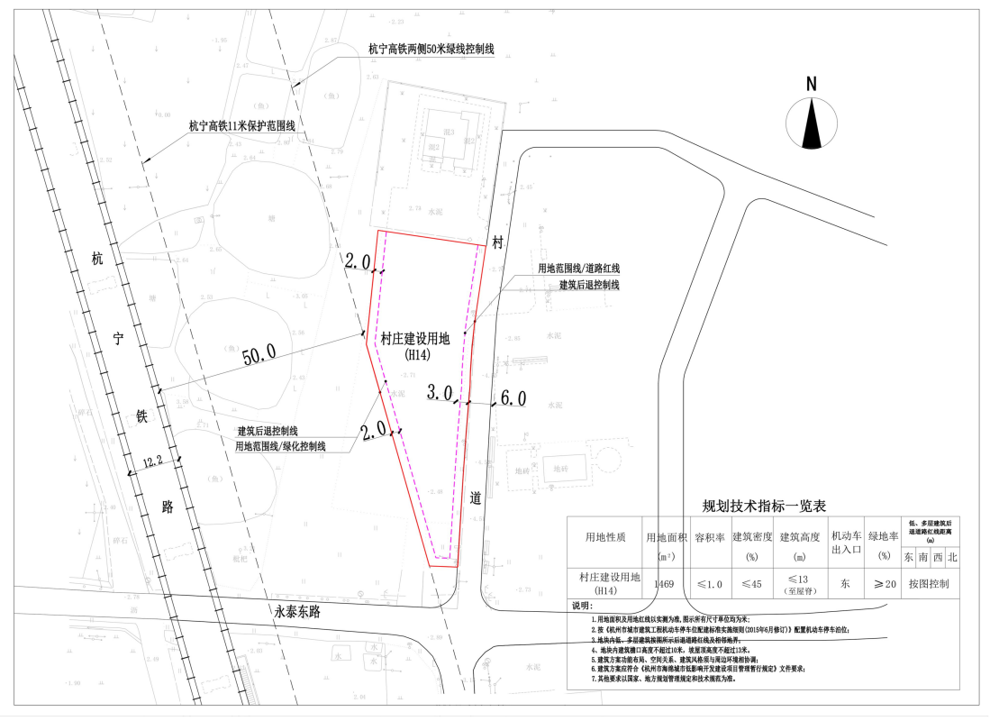
拟建一处村级文化礼堂位于仁和街道永泰村,杭宁铁路东侧,永泰东路北侧。

拟规划用地性质为村庄建设用地(H14),容积率 ≤1.0,建筑密度≤45%,建筑高度≤13米(至屋脊),绿地率≥20%。

浙里仁

仁和热点资讯新鲜事


这将关闭于 23